Armazém Amplo, pronto a usar na Póvoa Santo Adrião,o espaço que pode fazer crescer o seu negócio
- 2
- Útil: 665m2
- Bruta: 665m2
- C.E.: Isento
-
Ano: 1988
-
Orientação Solar: Nascente, Sul
- Ref: 65573-COLI60794
Lisboa, Odivelas, Póvoa de Santo Adrião e Olival Basto, Centro (Póvoa de Santo Adrião)
Armazém em exclusivo na mais consultores,fica situado na zona industrial da Póvoa Santo Adrião.
Este armazém tem um logradouro privativo para manobras e cargas.
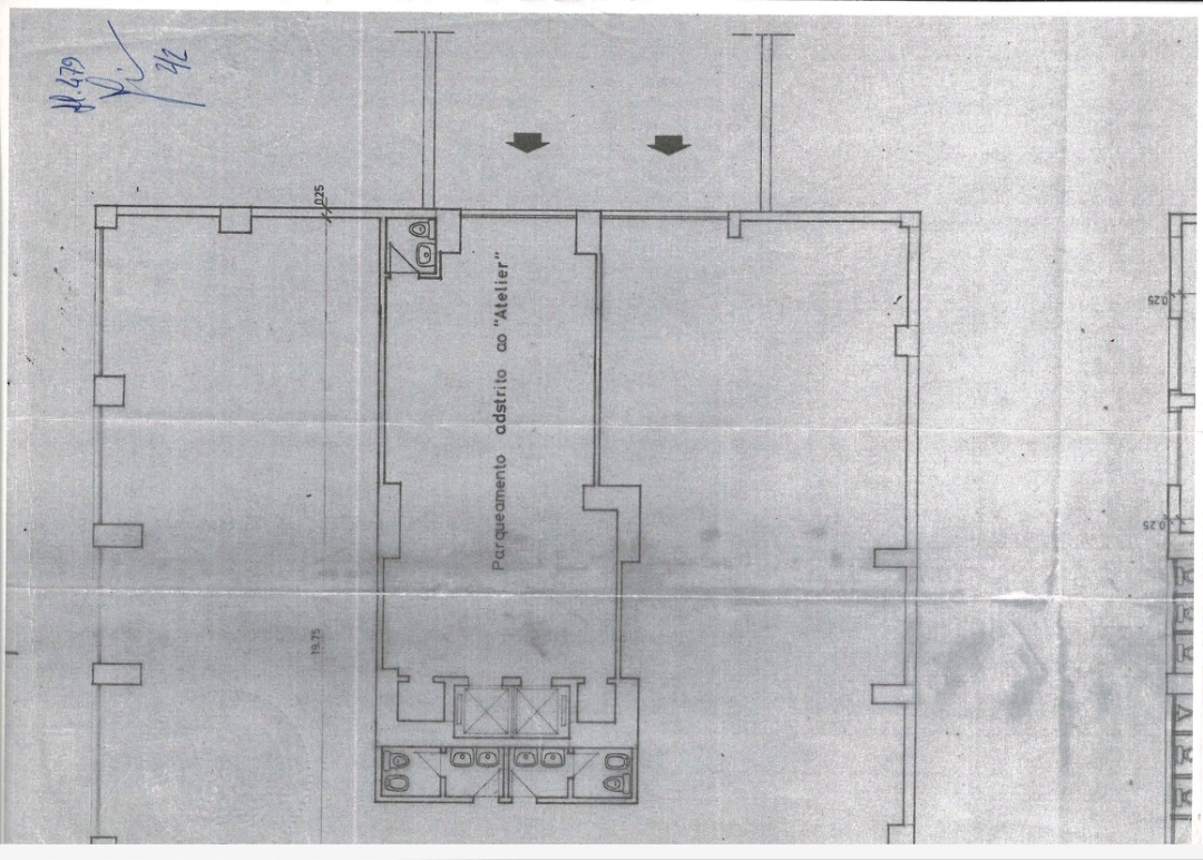
Ele é composto por 2 WC e 1 Cozinha.
Água canalizada e electricidade.
Altura de 4,10m
Portão principal 3,10x2,60
Armazém tem janelas em.alguns pontos do mesmo.
Este armazém tem 665 m2 amplos.
675€/por M2.
Entrada independente e fácil acessibilidade.
Ligação fácil às principais vias.
Localizado junto a grandes superfícies e serviços.
Zona consolidada com excelente dinâmica comercial.
Não percas esta oportunidade e marca já a tua visita.
- Cozinha / Copa
- Vista da Cidade
- Arrecadação
- Parqueamento exterior
- Água Canalizada
- Boa Exposição Solar
- Portão exterior manual
Nome do piso:
Piso 0
| Divisão |
Área |
Nota |
| WC |
|
|
| Parqueamento |
|
|
| Arrecadação |
|
|
| Cozinha |
|
|
| WC |
|
|